我們將使用cookie等資訊來優化您的體驗,繼續瀏覽即表示您同意我們使用。欲瞭解詳細內容,請詳閱
隱私權保護政策
×
一作室內裝修設計有限公司
SEARCH:
關於我們
作品集選
住宅設計
商業空間
老屋翻新
服務流程
案例分享
聯絡我們
案例分享
首頁
案例分享
全部案例分享
案例分享
醺質.工業
分享至Facebook
分享至X
分享至Plurk
分享至LINE
分享至Linkedin
分享至Whatsapp
分享至Weibo
分享至Blogger
分享至Gmail
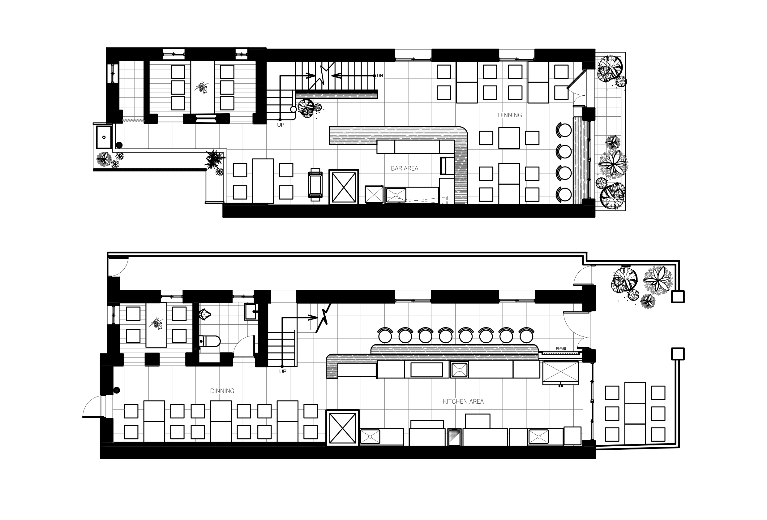
醺質.工業
空間坪數:55坪
空間格局 :-
房屋狀況 :老屋
設計風格 :日式
/
/
/
/
/
/
詳細介紹
回上頁
產品搜尋
聯絡我們
回首頁
SEARCH:
關於我們
作品集選
住宅設計
商業空間
老屋翻新
服務流程
案例分享
聯絡我們
03-3633-565
onedo0923@gmail.com